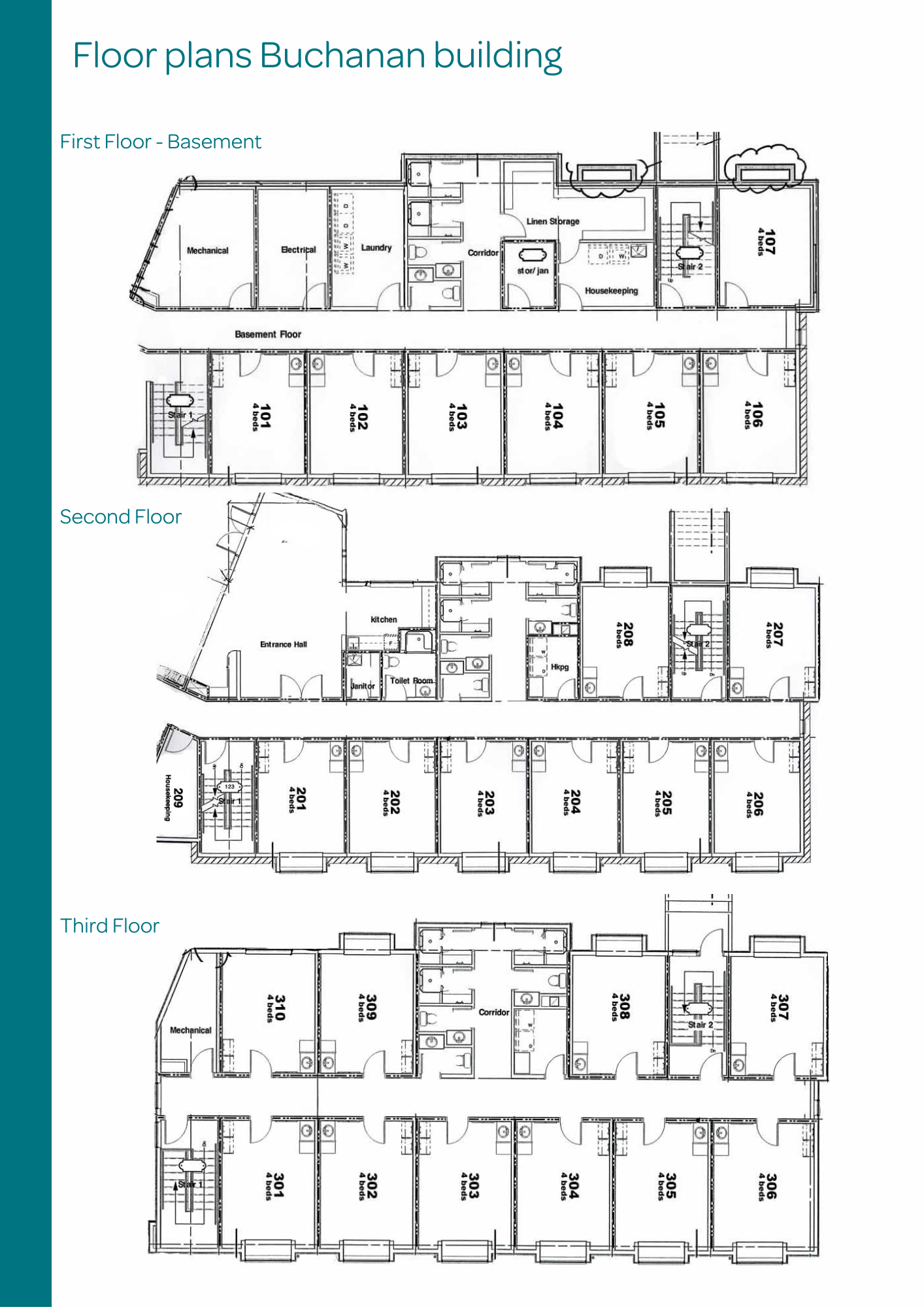
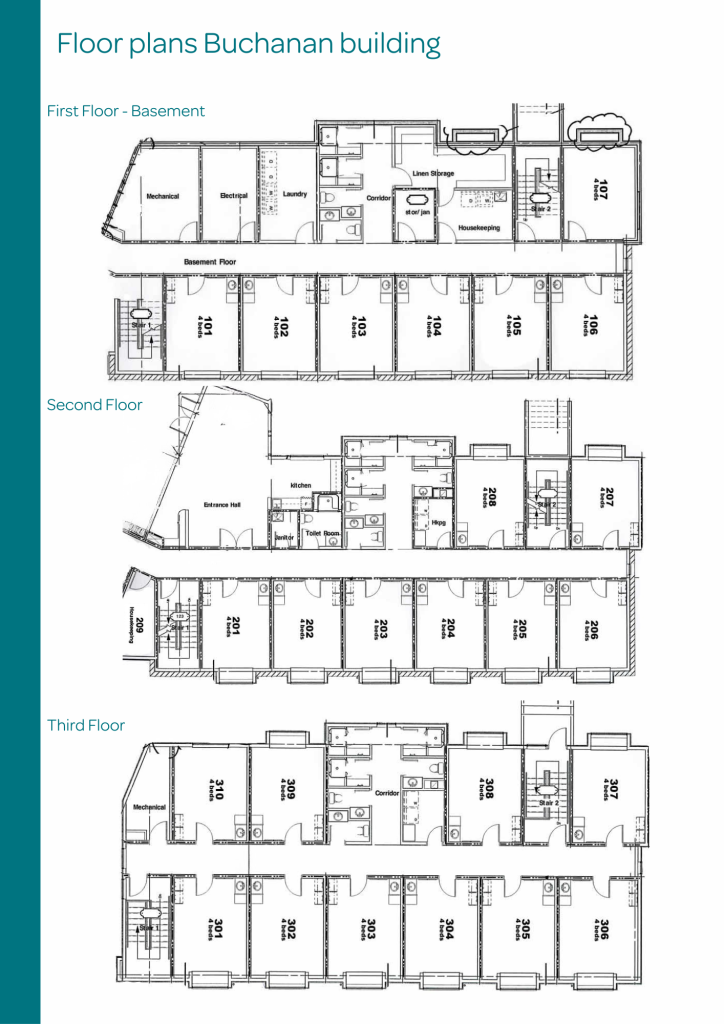
Bamfield Marine Sciences Centre provides year-round, on-campus housing for researchers, university students, our marine science field trip students, and a variety of visiting groups. All residences are within convenient walking distance of labs, lecture halls, cafeteria and foreshore. Our housing options are designed to be practical and comfortable to support short, medium, and longer term stays at our remote field station.
If you are looking to book an event or conference with housing on Vancouver Island, our station can accommodate it – depending on availability of spaces. Please see our events page and/or contact us at events(at)bamfieldmsc.com.
Please note that we are a scent-free workplace environment. Exposure to scented products can adversely affect a person’s health. Students and visitors are asked to be considerate in their use of products such as perfume, make-up, shampoo, deodorant, etc.), or from other products such as air fresheners, cleaners, etc.
For questions about accommodations please contact our guest services manager Veronica Zurita at vzurita(at)bamfieldmsc.com.
Off-site accomodation options
If you would prefer to book accommodations off-site, there are some local options. However, the busy season fills up very quickly so you should book your accommodations well in advance.
Note: Students attending courses must live in on-site accommodations
Here are some options of local accommodations (this is not an exhaustive list):
Eastside (road access):
Hacas Inn
Upnit Lodge
Pachena Bay Camp Ground
Westside (*boat access only):
Floras Stays
McKay Bay Lodge
Bamfield Lodge
Dragon Fly Property
See more through the Bamfield Chamber of Commerce: https://www.bamfieldchamber.com/




















